SCY3046 Tłok 101,8 kpl. 3 pierścienie +0,50

Indeks 123coq
420,00 zł
Brutto
Ilość

Silniki

Cummins 4T-390

Do tulei SCY5005

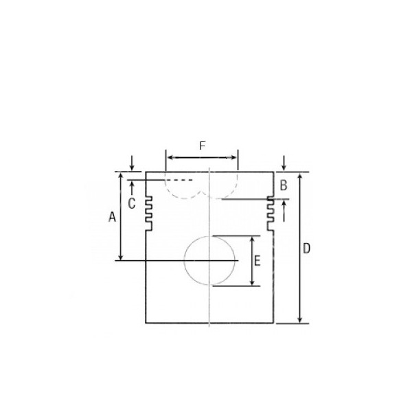
Rozmiary:
Średnica 101.80mm + 0,50mm
Pierścienie grubość 2,85 x 2,35 x 4mm
A Wysokość od środka sworznia 71.56mm
B Głębokość komory 17.70mm
E średnica sworznia 40.00x75.80mm
D Wysokość 105.36mm
F Średnica komory 59.00mm

Numery porównawcze
3802132 + 3802422