SCY3046 Kolben 101.8 Satz 3 Ringe +0.50

Artikel-Nr. 123coq
420,00 zł
Bruttopreis
Menge

Motoren

Cummins 4T-390

Für SCY5005-Buchse

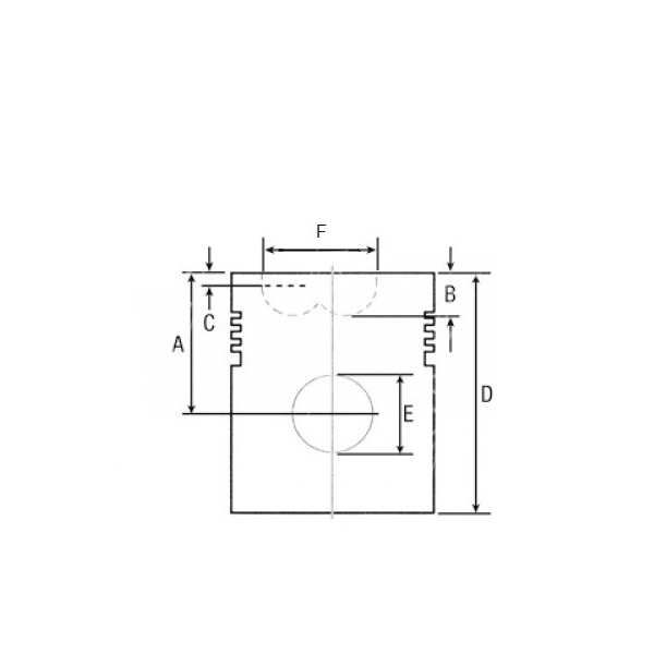
Größen:
Durchmesser 101,80 mm + 0,50 mm
Ringdicke 2,85 x 2,35 x 4 mm
A Höhe ab Stiftmitte 71,56 mm
B Kammertiefe 17,70 mm
E Stiftdurchmesser 40,00 x 75,80 mm
D Höhe 105,36 mm
F Kammerdurchmesser 59,00 mm

Numery porównawcze