SCY3009 Tłok 101,8 mm

Indeks 580

Case z turbo
580K,580SK,580L,580SLE,580SL,580SM

245,00 zł
Brutto
Ilość

Case z turbo
580K,580SK,580L,580SLE,580SL,580SM
621, 621 B, 621 C/CXR/CXT
W11B, W14B, W15
70 XT, 75 XT, 85 XT, 85 XT, 90 XT
650, 650 G, 680 K, 680 L
780 C, 780 D, 788, 788 P4A
850 D, 855 D, 880 D
988, 988 P4A
1000, 1088
1150 E, 1155 E, 1188, 1188 P4A
1840, 1845 C, 1896

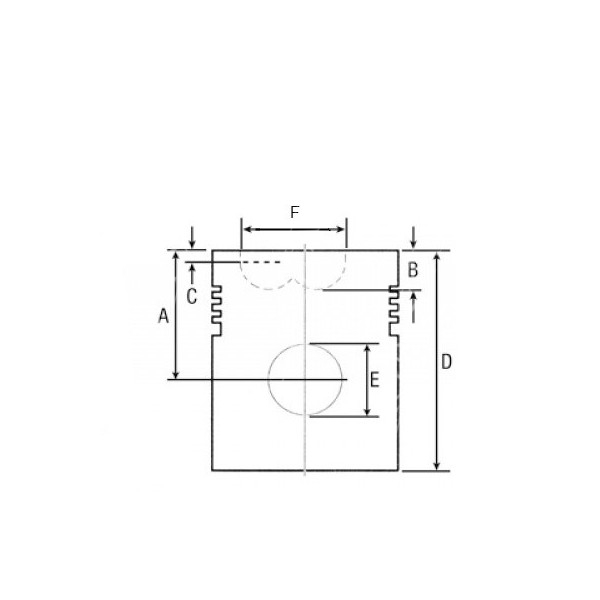
Rozmiary:
Średnica 101.80mm
A Wysokość od środka sworznia 71.56mm
B Głębokość komory 17.70mm
E średnica sworznia 40.00x75.80mm
D Wysokość 105.36mm
F Średnica komory 59.00mm

Numery porównawcze
A77518   A77730 A77733 C3543267

Zobacz także