SCY1007 Zestaw naprawczy silnika komora 17.70mm

Indeks 123co
383,00 zł
Brutto
Ilość

Case z turbo

621, 621 B, 621 C/CXR/CXT
W11B, W14B, W15
70 XT, 75 XT, 85 XT, 85 XT, 90 XT
450 C, 455 C, 480 E, 480 ELL
550 / E, 550 G, 550 H, 570 L XT, 580 E/K/L/LE/SK/SL, 580 Super E/LE, 580 Super K, 580 Super M, 584 E / 585 E / 586 E, 588, 588 G, 590, 590 Super LE, 595 Super LE
650, 650 G, 680 K, 680 L
780 C, 780 D, 788, 788 P4A
850 D, 855 D, 880 D
988, 988 P4A
1088
1150 E, 1155 E, 1188, 1188 P4A
1840, 1845 C, 1896
2096
40 XT
60 XT

Silniki
Cummins 4T-390

Do tulei SCY5005

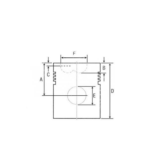
Rozmiary:
Średnica 101.80mm
Pierścienie grubość 2,85 x 2,35 x 4mm
A Wysokość od środka sworznia 71.56mm
B Głębokość komory 17.70mm
E średnica sworznia 40.00x75.80mm
D Wysokość 105.36mm
F Średnica komory 59.00mm

Numery porównawcze
A77518 A77730 A77733 C3543267 3802160 3907163 J904166 3904166 J901706

A77518 A77730 A77733 C3543267 3802160 3907163 J904166 3904166 J901706